STAMBENI OBJEKAT Po+Pr+3
Ćirila i Metodija 60, Novi Sad


PRVI SPRAT

 

STAN 03 – 35.60 m²

PRODATO

    Upit za stan

    Molimo Vas da popunite tražena polja i mi ćemo Vam odgovoriti u što kraćem roku na sva pitanja vezana za ovaj stan.

    DALTON   Zgrada u Ćirila i Metodija 60   Stan 03 12 21
    STAN 03
    _

    Pozicija stana

    DALTON   Zgrada u Ćirila i Metodija 60   Stan 03 12 21
    STAN 03
    _

    3D prikaz stana

    DALTON   Zgrada u Ćirila i Metodija 60   Stan 03 12 21
    STAN 03
    _

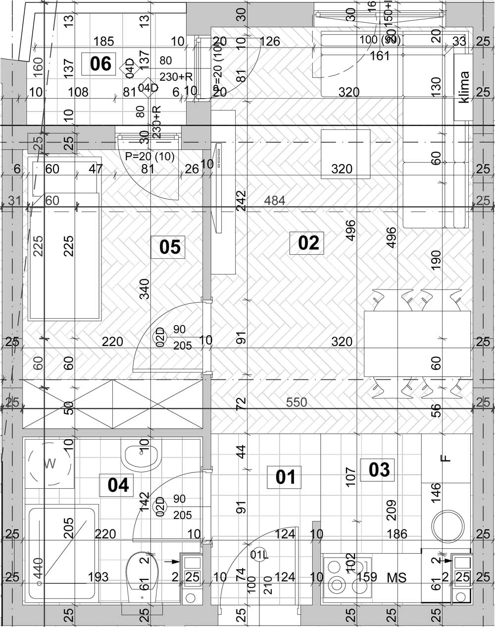
    Obračun površina

    br. Prostorija Površina
    01. Hodnik 2.62
    02. Dnevni boravak sa trpezarijom 15.40
    03. Kuhinja 3.60
    04. Kupatilo 4.21
    05. Spavaća soba 7.23
    06. Terasa 2.54
    35.60 m²

    U PONUDI SU:

    27Garaža
    2Lokala

      Upit za garažu ili lokal

      Molimo Vas da popunite tražena polja i mi ćemo Vam odgovoriti u što kraćem roku na sva pitanja vezana za garaže i lokale.